Objekt 34 von 59
Nächstes Objekt
Vorheriges Objekt
Zurück zur Übersicht

code
Zurück zur Übersicht
Nächstes Objekt
Vorheriges Objekt
Zurück zur ÜbersichtSt.Wendel: Großzügige Gelegenheit für Handwerker
Objekt-Nr.: 2917
Schnellkontakt
Optionen
Optionen
Basisinformationen
Adresse:
DE-66606 St.Wendel
Saarland
Saarland
Stadtteil:
Niederkirchen
Gebiet:
Ortslage
Preis:
98.000 €
Wohnfläche ca.:
170 m²
Grundstück ca.:
970 m²
Zimmeranzahl:
9
Weitere Informationen
Weitere Informationen
Haustyp:
Einfamilienhaus
Etagenanzahl:
2
Provisionspflichtig:
ja
Provision:
3,57 % inkl. Mwst
Bad:
Dusche, Wanne, Fenster
Anzahl Badezimmer:
1
Terrasse:
1
Garten:
ja
Kamin:
ja
Keller:
voll unterkellert
Umgebung:
Bus, Einkaufsmöglichkeit, ruhige Gegend
Anzahl der Parkflächen:
2 x Garage
Letzte Modernisierung/ Sanierung:
2021
Qualität der Ausstattung:
einfach
Baujahr:
1920
Bauphase:
Haus fertig gestellt
Verfügbar ab:
sofort
Bodenbelag:
Fliesen, Laminat, Parkett
Zustand:
renovierungsbedürftig
Heizung:
Zentralheizung
Befeuerungsart:
Öl
Energieausweistyp:
Bedarfsausweis - gültig vom 03.04.2016 bis 02.04.2026
Energieeffizienz-Klasse:
H
Endenergiebedarf:
409 kWh/(m²*a)
Baujahr laut Energieausweis:
1920
Energieklasse:
H
Beschreibung
Beschreibung
Objektbeschreibung:
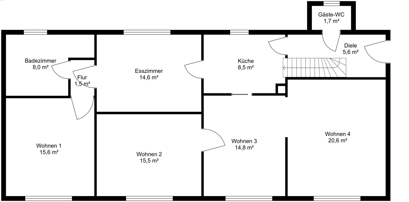
Dieses Wohnhaus in St. Wendel-Niederkirchen bietet auf mehreren Ebenen viel Platz und eine vielseitige Raumaufteilung. Neben den Wohnräumen verfügt die Immobilie über Keller- und Nebenflächen, eine Garage sowie einen terrassierten Außenbereich. Das Objekt ist in einem renovierungsbedürftigen Zustand und eignet sich daher insbesondere für Käufer, die ein Haus nach eigenen Vorstellungen gestalten möchten.
Ausstattung:
Das Gebäude ist mit einer Ölzentralheizung ausgestattet; zusätzliche Behaglichkeit bietet ein Kaminofen im Wohnbereich. In den Wohnräumen finden sich teils Parkett- und Holzböden, die nach Aufarbeitung wieder ihren ursprünglichen Charme entfalten können.
Die Bäder sowie die Gäste-WCs stammen aus verschiedenen Baujahren und entsprechen nicht mehr modernen Ansprüchen. Mehrere Bereiche des Hauses, darunter das Dach, die Sanitäranlagen und die Kellerflächen, weisen Sanierungsbedarf auf. Feuchtigkeitsschäden, veraltete Installationen sowie Abnutzung sind sichtbar und erfordern umfassende Renovierungsmaßnahmen.
Die Garage ist direkt ins Haus integriert und mit einem modernen Sektionaltor ausgestattet. Der Außenbereich ist terrassiert, mit einer gepflasterten Einfahrt, einer großzügigen Terrasse und einem Hanggrundstück, das Potenzial für Gartengestaltung bietet.
Die Bäder sowie die Gäste-WCs stammen aus verschiedenen Baujahren und entsprechen nicht mehr modernen Ansprüchen. Mehrere Bereiche des Hauses, darunter das Dach, die Sanitäranlagen und die Kellerflächen, weisen Sanierungsbedarf auf. Feuchtigkeitsschäden, veraltete Installationen sowie Abnutzung sind sichtbar und erfordern umfassende Renovierungsmaßnahmen.
Die Garage ist direkt ins Haus integriert und mit einem modernen Sektionaltor ausgestattet. Der Außenbereich ist terrassiert, mit einer gepflasterten Einfahrt, einer großzügigen Terrasse und einem Hanggrundstück, das Potenzial für Gartengestaltung bietet.
Lage:
Das Anwesen befindet sich in ruhiger Wohnlage von St. Wendel-Niederkirchen. Der Ortsteil bietet eine angenehme Nachbarschaft und eine naturnahe Umgebung. Einrichtungen des täglichen Bedarfs, Kindergärten und Schulen sind in Niederkirchen oder im nahegelegenen St. Wendel vorhanden. Die Kreisstadt St. Wendel ist in wenigen Fahrminuten erreichbar und bietet eine ausgezeichnete Infrastruktur, zahlreiche Einkaufsmöglichkeiten, Gastronomie, Kultur- und Freizeitangebote. Über die Bundesstraße B41 besteht zudem eine gute Anbindung an die umliegenden Städte und die Autobahn.
Sonstiges:
Die Immobilie bietet eine solide Grundsubstanz, erfordert jedoch eine umfassende Modernisierung. Für handwerklich versierte Käufer oder Investoren eröffnet sich hier die Möglichkeit, ein individuelles Eigenheim oder ein Projekt mit Potenzial in attraktiver Lage zu realisieren. Weitere Unterlagen wie Grundrisspläne, Energieausweis und Grundbuchauszug werden derzeit vorbereitet und stehen in Kürze zur Verfügung.
Provision:
3,57% inkl. Mwst.
Anmerkung:
Die von uns gemachten Informationen beruhen auf Angaben des Verkäufers bzw. der Verkäuferin. Für die Richtigkeit und Vollständigkeit der Angaben kann keine Gewähr bzw. Haftung übernommen werden. Ein Zwischenverkauf und Irrtümer sind vorbehalten.
Anfragen mit vollständiger Angabe der Interessentendaten (Name, Anschrift, Telefonnummer, E-mail-Adresse) werden vorrangig beantwortet. Bei unvollständiger Angabe der Daten behalten wir uns eine Nichtberücksichtigung der Anfrage vor.
Eine große Auswahl von Alternativ-Objekten finden Sie unter www.zinsmeister-immobilien.de. Gerne geben wir Ihnen auch telefonisch jederzeit unter der Rufnummer 06381 917496 oder 0151 7061 4672 Auskunft.
Anfragen mit vollständiger Angabe der Interessentendaten (Name, Anschrift, Telefonnummer, E-mail-Adresse) werden vorrangig beantwortet. Bei unvollständiger Angabe der Daten behalten wir uns eine Nichtberücksichtigung der Anfrage vor.
Eine große Auswahl von Alternativ-Objekten finden Sie unter www.zinsmeister-immobilien.de. Gerne geben wir Ihnen auch telefonisch jederzeit unter der Rufnummer 06381 917496 oder 0151 7061 4672 Auskunft.
AGB:
Wir weisen auf unsere Allgemeinen Geschäftsbedingungen hin. Durch weitere Inanspruchnahme unserer Leistungen erklären Sie die Kenntnis und Ihr Einverständnis.
Der Kauf eines Eigenheims will auch finanziell vorausschauend geplant sein. Deshalb bieten wir Ihnen AUF WUNSCH unseren hauseigenen Finanzierungs-Service an. Unser Finanzierungsexperte informiert Sie gerne und bietet Ihnen, abgestellt auf Ihre persönliche Bedarfssituation, optimale Lösungen. Wir arbeiten seit vielen Jahren unabhängig mit zahlreichen regionalen und überregionalen Finanzierungsinstituten zusammen. Auch bei der Beantragung von öffentlichen Fördermitteln sind wir Ihnen gerne behilflich. Profitieren auch Sie von attraktiven Konditionen!
Ihr Ansprechpartner

Zinsmeister-Immobilien, Sandra Zinsmeister
Herr Michael Ulrich
Kettelerstraße 2a
66606 St Wendel
Büro: +49 6851 9738111
Mobil: +49 174 8918562
Herr Michael Ulrich
Kettelerstraße 2a
66606 St Wendel
Büro: +49 6851 9738111
Mobil: +49 174 8918562
Zurück zur Übersicht















